Berlin-Mitte - 4 Zi - FREI - Mit schallisoliertem Vielzweck-Raum für verschiedene Zwecke
-
Vorzüge des Objektes
+ Moderne Wohnanlage bestehend aus Neubau und hochwertig modernisiertem Altbau
+ Wohnung im 5. Obergeschoss des Neubaus mit Südausrichtung zum ruhigen, großen Innenhof
+ Einzigartiges Konzept – mit schallisoliertes Zimmer innerhalb der Wohnung
+ Das schallisolierte Zimmer kann für viele Anwendungen von Vorteil sein.
+ Hochwertiger Eichenfertigparkettboden in den Wohnbereichen
+ Warmwasser-Zentral-Fußbodenheizung mit Nutzung von Geothermie (Wärme aus der Erde).
+ Kontrollierte Lüftung für ein angenehmes Raumklima
+ Warmwasserversorgung unterstützt durch thermische Solaranlage auf dem Dach
+ Energetisch hochwertige Bauweise mit Wärmeschutzverglasung
+ Großzügig gärtnerisch gestalteter Innenhof als ruhige, grüne Oase
+ Optional: Ein Tiefgaragenstellplatz mit direktem Zugang über Aufzug vom Keller bis ins 5.OG möglich
+ Tiefgarage mit straßenseitiger Zufahrt für komfortables Ein- und Ausfahren
Das Objekt ist ein Neubau aus dem Jahre 2011 und einem damit verbundenen modernisiertem Altbau. Diese Wohnung befindet sich im 5.OG des Neubauteils und geht zur Seite nach Süden in einen großen Innenhof raus.
Die Besonderheit des Objektes sind der innerhalb der Wohnung eingebautem schallisolierten Raum für verschiedene Zwecke.
Die Wohnung hat einem hochwertigen Eichenfertigparkettboden, eine Warmwasser-Zentral-Fußbodenheizung (mit Nutzung von Geothermie) und eine kontrollierte Wohnraumlüftung. Die Warmwasserversorgung wird von einer thermischen Solaranlage auf dem Dach unterstützt. Alle Fenster haben Wärmeschutzverglasungen.
Unter dem großzügig gärtnerisch gestalteten Innenhof befindet sich die Tiefgarage, mit einer direkten straßenseitigen Zufahrt.
OPTIONAL: Zur Wohnung kann ein TIEFGARAGENSTELLPLATZ erworben werden, den man über den vom Keller bis zum 5.OG fahrenden Fahrstuhl direkt erreichen kann. -
Flächen
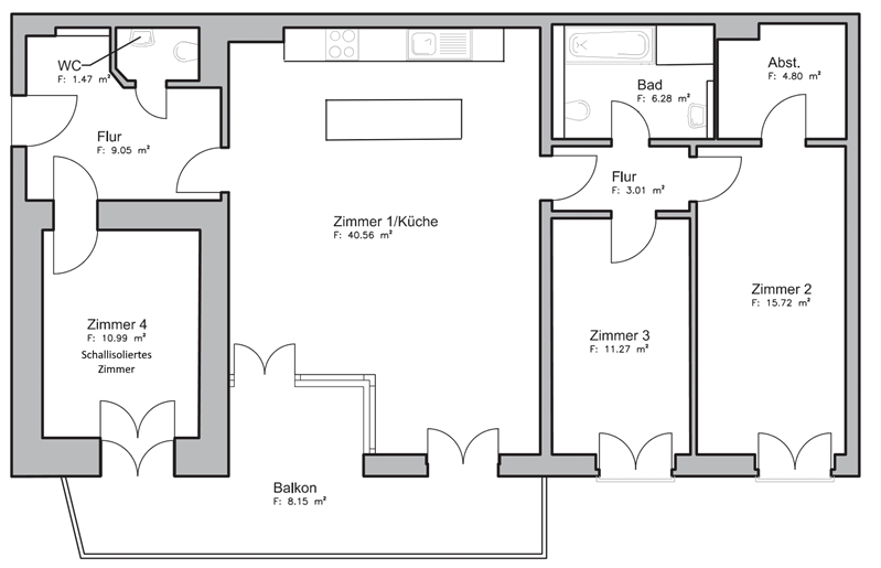
- Wohnfläche: 111,25 m²
- Zimmer insgesamt: 4
- Wohn- und Schlafzimmer: 4
- Schlafzimmer: 4
- Badezimmer: 1
- Etagen: 6
- Etage: 5
- WG-geeignet: ja
- Balkone: 1
Zustand & Erschließung
- Baujahr: 2011
- Keller: voll unterkellert
Sonstiges
Möchten Sie sich gern im Hinblick auf eine mögliche Finanzierung beraten lassen, empfehlen wir Sie gern an einen unserer langjährigen renommierten deutschlandweit aktiven Finanzierungspartner. Fragen Sie uns gern für weitere Details.
Alle Angaben sind ohne Gewähr und nach den Unterlagen des Eigentümers erstellt. Irrtümer und Änderungen vorbehalten. Bei aller Sorgfalt können wir keine Garantie dafür übernehmen, dass alle Angaben richtig sind, und das Objekt im Augenblick des Zugangs der Offerte noch verfügbar ist.
Newsletteranmeldung
Genießen Sie die Vorteile unseres Newsletters: Unsere NEUESTEN Angebote im Bereich FREIER Eigentumswohnungen und Einfamilienhäuser erhalten Sie 24 Stunden BEVOR sie allgemein Veröffentlicht werden:
Unser Newsletter
Wir suchen IHRE Immobilie für unsere Kunden!
Durch das tägliche Gespräch mit unseren Interessenten und Kunden wissen wir natürlich, was diese suchen. Vielleicht haben wir aber gerade jetzt nicht die richtige Kauf Immobilie für unseren Interessenten im Programm.
Hier kommen Sie ins Spiel, um die Interessenten mit Ihrer individuellen Traumimmobilie zusammenzubringen. Wenn Sie eine Immobilie besitzen und über einen Immobilien Verkauf nachdenken, dann melden Sie sich bei uns.
Denn gute Immobilien zu einem marktgerechten Kaufpreis sind immer gefragt, und werden ihren Käufer finden. Wir stehen Ihnen bei allen Fragen zum Immobilienverkauf mit Rat und Tat zur Seite.
BITTE ÜBERPRÜFEN SIE AUCH IHREN SPAM-FILTER IN IHREM EMAIL-POSTFACH, DAMIT SIE DIE E-MAIL AUCH ERHALTEN, WENN SIE EINE IMMOBILIE BEI UNS ANGEFRAGT HABEN!
Wir freuen uns von Ihnen zu hören unter, Sie erreichen uns wie folgt:
Rüdiger Wilkanowski Immobilien
Herrn Rüdiger Wilkanowski
Festnetz: 030 – 85 60 56 12
oder unter https://wilkanowski-immobilien.de/immobilie-verkaufen/professionelle-immobilienbewertung/- Wohnungsnummer: WE5420260405
- Immobilie ist verfügbar ab: Nach Absprache
-
Vorzüge der Wohnung
Ein besonderes Highlight ist der schallisolierte Raum, der sich flexibel als Homeoffice, Studio, Hobbyraum oder ruhiges Schlafzimmer nutzen lässt. Ideal für alle, die Wert auf ungestörtes Arbeiten oder entspannte Freizeitgestaltung legen.
Der Raum eignet sich perfekt für: Sprecher, Podcaster, Videocutter, Social-Media-Produzenten, Fotografen / Bildbearbeiter
Designer, Architekten, Autoren, YouTube-Streamer, Influencer / Social Content Worker etc.+ Großzügige und harmonisch gestaltete Wohnräume
+ Helles Wohn- und Esszimmer mit offen integrierter, moderner Einbauküche
+ Durchdachte Raumaufteilung mit klarer Trennung von Wohn- und Privaträumen
+ Separates schallisoliertes Zimmer, Gäste-/Arbeitszimmer und ruhiges Schlafzimmer mit Ankleidebereich
+ Praktisches Badezimmer mit hochwertigen Badelementen
+ Großzügiger Südbalkon mit angrenzender Loggia und Blick in den gepflegten, ruhigen Innenhofgarten
+ Hervorragende Belichtung und sonnige Ausrichtung der Wohnräume
+ Schallisoliertes Zimmer statisch und akustisch entkoppelt
+ Hoher Wohnkomfort durch funktionale und ästhetische Gestaltung
+ Perfekte Kombination aus urbanem Lebensstil und RückzugsqualitätDas lichtdurchflutete Wohn- und Esszimmer mit offener Einbauküche ist das Herzstück der Wohnung und verbindet Komfort mit Geselligkeit. Von hier führt der Zugang zu einem großen Südbalkon mit Loggia und Blick in den ruhigen, gepflegten Innenhofgarten – ideal zum Entspannen und Genießen.
Etwas abseits davon liegen das Gäste- bzw. Arbeitszimmer sowie das ruhige Schlafzimmer mit angrenzendem Ankleidebereich und praktischem Badezimmer. Diese durchdachte Raumaufteilung schafft eine klare Trennung zwischen den privaten Rückzugsorten und den repräsentativen Wohnbereichen.
- Art der Ausstattung: gehoben
- Heizungsart: Fußbodenheizung
- Befeuerung: Gas
- Bodenbelag: Parkett
- Küche: Einbauküche
-
- Energieausweis-Art: Verbrauch
- Energieausweis gültig bis: 30.06.2034
- Energieverbrauchskennwert: 50,40 kWh/(m²*a)
- Warmwasser im Energieverbrauch enthalten: ja
- Primärenergieträger: Gas
- Heizenergieverbrauchskennwert: 50,4 kWh/(m²*a)
- Energieeffizienzklasse: B
- Energieausweis-Ausstellungsdatum: 11.06.2024
- Energieausweis-Jahrgang: ab Mai 2014
-
Liste der Vorzüge der Lage:
+ Zentrale Lage im Herzen Berlins zwischen Spree und Märkischem Ufer
+ Ruhige, freundliche Wohnumgebung trotz Innenstadtlage
+ Begrünte Innenhöfe und geringer Durchgangsverkehr sorgen für Erholung mitten in der Stadt
+ Schulen, Kitas und Spielplätze in unmittelbarer Nähe
+ Vielfältige Einkaufsmöglichkeiten, Cafés und kleine Restaurants fußläufig erreichbar
+ Historisches Nikolaiviertel, Fischerinsel und Spreeuferpromenade nur wenige Gehminuten entfernt
+ Nahe kulturelle Highlights: Humboldt Forum, Museumsinsel und Gendarmenmarkt
+ Hervorragende Anbindung an den öffentlichen Nahverkehr (U2 – Märkisches Museum & Spittelmarkt)
+ Gute Ergänzung durch Buslinien und Radwege
+ Ideale Wohnlage für Familien, die urbane Zentralität mit ruhiger Wohnqualität verbinden möchtenDas Objekt liegt im Herzen Berlins, zwischen Spree und Märkischem Ufer – Nahe dem Spittelmarkt und der Fischerinsel – eine ruhige, freundliche Lage mitten in der Stadt.
Trotz der zentralen Position in Berlin-Mitte genießt man hier erstaunlich viel Ruhe durch begrünte Innenhöfe und wenig Durchgangsverkehr. Schulen, Kitas und Spielplätze befinden sich in unmittelbarer Nähe, ebenso Einkaufsmöglichkeiten, Cafés und kleine Restaurants.
Nur wenige Gehminuten entfernt liegen der historische Nikolaiviertel, die Fischerinsel sowie die Spreeuferpromenade für Spaziergänge mit der Familie. Auch kulturelle Highlights wie das Humboldt Forum, die Museumsinsel und der Gendarmenmarkt sind schnell erreichbar. Die Anbindung an den öffentlichen Nahverkehr ist hervorragend: Die U-Bahnhöfe Märkisches Museum (U2) und Spittelmarkt (U2) liegen nur wenige Schritte entfernt, Bus- und Radwege ergänzen die Mobilität optimal. Eine ideale Wohnlage für Familien, die zentrale Urbanität und entspannte Wohnqualität verbinden möchten. -
- Kaufpreis: 995.000 €
- Kaufpreis pro m²: 8.943,82 €
- Hausgeld: 356 €
- Käuferprovision: 3,00 % Käufercourtage inkl MwSt
- Hinweis zur Courtage: Der Käufer verpflichtet sich im Falle des Erwerbs des vorstehenden Objektes an die Maklerfirma eine Provision in Höhe von 3,00 % des Kaufpreises inklusive 19% Mehrwertsteuer zu zahlen. Verdient und fällig mit Beurkundung des notariellen Kaufvertrages. Mit dem Verkäufer haben wir eine gleichgeartete Provisionsvereinbarung geschlossen.
Grundrisse




























