Nahe Deutsche Oper Erdgeschoß mit eigenem Gartenteil - Berlin-Charlottenburg
-
Das Gebäude
Es handelt sich um ein zweigeschossiges Gartenhaus mit Staffelgeschoß und Teilunterkellerung in einem begrünten Berliner Wohnhof.
Die Kellerwände und der Kellerboden werden aus wasserundurchlässigem Beton hergestellt. Alle bodenberührenden Bauteile des Gebäudes, wie die Bodenplatte und Wände im Erdreich erhalten zusätzlich eine Wärmedämmung.
Die Außenwände werden aus Kalksandsteinen hergestellt und mit einer 24 cm starken Wärmedämmung versehen.
Die großzügige Verglasung der Wohnungen besteht aus Isolierglas-Fenstern mit einem U-Wert bis 0,6 W/m³K und die Fensterrahmen bis 1,1 W/m³K. Die Wohnungsfenster erhalten Pilzkopfverriegelung und abschließbare Fenstergriff-Oliven. Zusätzlich werden elektrisch bedienbare außenseitig liegende Sonnenschutzrollos zur Verdunkelung mit Zip-System installiert.
Die Geschoßdecken sind Filigran-Decken-Elemente, welche mit Ortbeton versehen werden. Die Treppenläufe bestehen aus vorgefertigten Elementen. Diese werden schallentkoppelt montiert.
Das Dach des Hauses erhält eine 24 cm starke Dämmung und eine intensive Dachbegrünung, welche Regenwasser speichert und mittels Verdunstung wieder freigibt, was das Mikroklima des Gebäudes positiv beeinflusst. Dieser Effekt wird zusätzlich durch Wandbegrünungen über dem Gebäude verstärkt, welche an beiden Seiten angebracht werden. Zur Pflege von Gründach und Wandbegrünung soll längsseitig ein Abschlussgeländer montiert und ein Dachausstieg integriert werden.
Das gesamte Gebäude wird mit Wärmedämmverbundsystem entsprechend Wärmeschutznachweis sowie den baurechtlichen und statischen Vorgaben versehen.
Beheizung erfolgt durch das Fernwärmenetz. Ein Wärmetauscher in der Wohnungsübergabestation erwärmt die Fußbodenheizung sowie das Wasser. Die Wohnungsstation verfügt zusätzlich über einem Hybrid-Durchlauferhitzer zur Warmwassernacherwärmung, um Schwankungen in der Warmwasserversorgung vorzubeugen.
Das Wasser des Hauses wird im Vorfeld mit einer Grünbeck Wasserfilteranlage pureliQ mit automatischer Rückflussspülung sowie eine Wasserenthärtungsanlage softli Q aufbereitet.
Die Barrierefreiheit wird durch den Aufzug des Hauses, welcher über Haltestellen auf allen Geschoßen des Hauses verfügt, geschaffen.
Die Briefkastenanlage wird am Zugang zum Grundstück installiert und mit einer Videogegensprechanlage versehen.
Die Balkone, Terrassen und Dachterrassen erhalten einen Betonsteinbelag.
Die Wohnungstüren erhalten einen Türspion sowie ein Türschloss mit einer Selbstverriegelung und Schließzylinder passend zur zentralen Schließanlage des Gartenhauses.
Der Zugangsbereich und Hofbereich wird neu angelegt und begrünt. So werden der Mülltonnen- sowie der Fahrradabstellplatz mit einem Dach mit Begrünung versehen, ein kleiner Spielplatz und eine Sitzecke angelegt. Die Zuwegung wird neu gepflastert und erhält eine Beleuchtung. -
Flächen
- Wohnfläche: 99,37 m²
- Zimmer insgesamt: 3
- Wohn- und Schlafzimmer: 3
- Schlafzimmer: 2
- Badezimmer: 2
- Etagen: 3
- Balkone: 1
Zustand & Erschließung
- Baujahr: 2025
- Zustand: Erstbezug
- Letzte Modernisierung: 2025
- Keller: voll unterkellert
Sonstiges
Möchten Sie sich gern im Hinblick auf eine mögliche Finanzierung beraten lassen, empfehlen wir Sie gern an einen unserer langjährigen renommierten deutschlandweit aktiven Finanzierungspartner. Fragen Sie uns gern für weitere Details.
Alle Angaben sind ohne Gewähr und nach den Unterlagen des Eigentümers erstellt. Irrtümer und Änderungen vorbehalten. Bei aller Sorgfalt können wir keine Garantie dafür übernehmen, dass alle Angaben richtig sind, und das Objekt im Augenblick des Zugangs der Offerte noch verfügbar ist.
Newsletteranmeldung
Genießen Sie die Vorteile unseres Newsletters: Unsere NEUESTEN Angebote im Bereich FREIER Eigentumswohnungen und Einfamilienhäuser erhalten Sie 24 Stunden BEVOR sie allgemein Veröffentlicht werden:
Unser Newsletter
Wir suchen IHRE Immobilie für unsere Kunden!
Durch das tägliche Gespräch mit unseren Interessenten und Kunden wissen wir natürlich, was diese suchen. Vielleicht haben wir aber gerade jetzt nicht die richtige Kauf Immobilie für unseren Interessenten im Programm.
Hier kommen Sie ins Spiel, um die Interessenten mit Ihrer individuellen Traumimmobilie zusammenzubringen. Wenn Sie eine Immobilie besitzen und über einen Immobilien Verkauf nachdenken, dann melden Sie sich bei uns.
Denn gute Immobilien zu einem marktgerechten Kaufpreis sind immer gefragt, und werden ihren Käufer finden. Wir stehen Ihnen bei allen Fragen zum Immobilienverkauf mit Rat und Tat zur Seite.
BITTE ÜBERPRÜFEN SIE AUCH IHREN SPAM-FILTER IN IHREM EMAIL-POSTFACH, DAMIT SIE DIE E-MAIL AUCH ERHALTEN, WENN SIE EINE IMMOBILIE BEI UNS ANGEFRAGT HABEN!
Wir freuen uns von Ihnen zu hören unter, Sie erreichen uns wie folgt:
Rüdiger Wilkanowski Immobilien
in Kooperation mit:
Roman Seidl Immobilien
Telefon: 0173 – 21 87 927
Festnetz: 030 – 85 60 56 12
oder unter https://wilkanowski-immobilien.de/immobilie-verkaufen/professionelle-immobilienbewertung/- Wohnungsnummer: WE31-20260412
- Immobilie ist verfügbar ab: Nach Vereinbarung
-
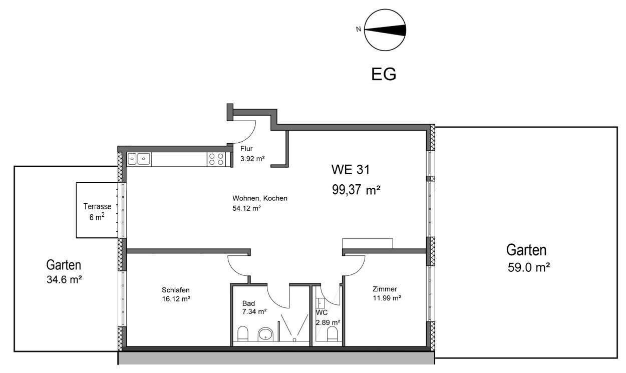
Solitär im Kiez, WE 31, Erdgeschoß, 99,37 m² Wohnfläche gesamt
Die Erdgeschoß-Wohnung verfügt im begrünten Wohnhof über einen vorgelagerten Privatgarten mit einer Fläche von ca. 34,6 m² Gartenfläche mit einer ca. 6m² großen Terrasse. Der in sich geschlossene Süd-Garten im 2.Gartenhof mit ca. 59 m² Gartenfläche ist als Privatgarten ausgelegt. Dieser ist mit einer Mauer bzw. Hecke eingefasst und wird durch die Friedenskirche im Hintergrund begrenzt, was den Blick gen Süden unverbaut lässt. Hier kann man im Grünen entspannen.Durch das mittig angeordnete und repräsentativ gestaltete Treppenhaus mit Aufzug gelangt man barrierefrei in eine schöne und effizient geschnittene 3 Zimmer-Wohnung mit Nord-Süd Fensterausrichtung. Diese Offenheit wird durch raumhohe Zimmertüren zusätzlich unterstützt.
Der Wohnungsgrundriss ist variabel, wobei tragende Bauteile und Versorgungsanschlüsse Vorrang haben und zu beachten sind.
Die vorliegende Planung sieht im Eingangsbereich einen Garderobenbereich vor, von welchem sich in Richtung Südgarten der Wohnbereich öffnet und der Küchenbereich zum Garten mit vorgelagerter Terrasse. Daran anschließend befindet sich zu beiden Seiten jeweils ein Zimmer sowie das mittig gelegene Badezimmer mit ebenerdiger Dusche sowie ein Gäste-WC.
Die Fenster verfügen über abschließbare Fenstergriffe sowie Pilzkopfverriegelung und erhalten allesamt außenliegende Sonnen- bzw. Blickschutzrollos zur Verdunkelung. Diese werden elektrisch bedient und haben seitliche Führungsschienen, so dass keine seitlichen Flatterbewegungen entstehen können.
Das Lüftungssystem wird gerade überarbeitet.
Die Wohnungseingangstür erhält ein selbst verriegelndes Schloss sowie einen Spion. Der Wohnungstürschließzylinder ist Teil einer zentralen Schließanlage, so dass nur 1 Schlüssel für alle zentralen Türen des Gebäudes notwendig ist. Im Weiteren erhält die Wohnung über eine Videogegensprechanlage.
Zur Wohnung gehört ein eigener Kellerraum mit Beleuchtung und zusätzlicher Steckdose.
Durch eine Wohnungsstation mit Wärmetauscher wird die Fußbodenheizung betrieben und das Warmwasser aufbereitet, welche mit einer Warmwassernacherwärmung ausgestattet ist und für ausreichend gleichmäßig Warmwasser sorgt.
In der Wohnung werden entsprechend den technischen Anforderungen Rauchmelder installiert, welche für zusätzlichen Schutz sorgen.
- Art der Ausstattung: gehoben
- Heizungsart: Zentralheizung
- Befeuerung: Fernwärme
- Bodenbelag: Parkett
-
- Energieausweis-Art: Bedarf
- Warmwasser im Energieverbrauch enthalten: ja
- Endenergiebedarf: 35,60 kWh/(m²*a)
- Primärenergieträger: Fernwärme
- Heizenergieverbrauchskennwert: 35,6 kWh/(m²*a)
- Energieeffizienzklasse: A
-
Berlin-Charlottenburg – Das Objekt befindet sich in einer ruhigen Seitenstraße zwischen der Wilmersdorfer Straße und der Richard-Wagner-Strasse, in direkter Nähe zur Deutschen Oper. Die Nähe zum Charlottenburger Schloss und dem Spreeufer biete gute Erholungsmöglichkeiten Von hier aus gelangt man in Windeseile zur A 100 und von da aus schnell zum Flughafen, und dann in den Rest der Welt. Soll es nicht so weit weg gehen, haben Sie auch gute, fußläufig schnell erreichbare Bus und U-Bahnanbindungen (U2 und U7).
Berlin CITY WEST – Charlottenburg
Charlottenburg ist einzigartig in seiner Vielfalt. Zwischen Westend und dem Berliner Tiergarten treffen sich Geschäftsleute, Akademiker, Neuankömmlinge und Alteingesessene. Hier hat sich großbürgerliches Flair zu modernem Lifestyle entwickelt.DIE LAGE IST IDYLLISCH, RUHIG – UND MITTENDRIN!
Berlin – pulsierende Weltstadt
Die DNA dieser Stadt wird geprägt von Geschichte, Kunst, Kultur und durch den Geist von Gründern. Stadt der Gegensätze. Grosstadt & Kiez. Eine Stadt, die sich permanent verändert, wächst und (noch) abwechslungsreicher wird.Der Bezirk Berlin-Charlottenburg gehört zu den traditionell begehrtesten Wohnlagen der Stadt.
In vielen Lagen sind alle Annehmlichkeiten gehobener Wohnkultur vorhanden.
Der Wandel der Zeit zeigt sich in der City-West durch neue Adressen, wie das Zoofenster mit dem Waldorf Astoria, das Bikini Haus am Breitscheidplatz neben dem Europa Center, das Quartier Neues Kranzler Eck oder die Mall of Ku’damm und das Ku’damm Karre.Diverse Cafés und gehobene Restaurants finden Sie in der nahen Umgebung der Wohnanlage. Neben der direkten Lage an der Deutschen Oper gibt es mehrere bekannte Museen und Theater, wie das Museum Berggruen oder die Schaubühne am Lehniner Platz.
Umgebung
Abseits des Trubels der Großstadt und nur wenige Gehminuten entfernt bietet der Schlossgarten des Schloss Charlottenburg, wie auch der Lietzensee mit seinem Park zwei echte Naherholungsgebiete. Auch zum Spreeufer sind es nur ein paar Minuten. -
- Kaufpreis: 995.000 €
- Kaufpreis pro m²: 10.013,08 €
- Käuferprovision: 3,57% Käufercourtage inkl MwSt
- Hinweis zur Courtage: Der Käufer verpflichtet sich im Falle des Erwerbs des vorstehenden Objektes an die Maklerfirma eine Provision in Höhe von 3,57 % des Kaufpreises inklusive 19% Mehrwertsteuer zu zahlen. Verdient und fällig mit Beurkundung des notariellen Kaufvertrages. Mit dem Verkäufer haben wir eine gleichgeartete Provisionsvereinbarung geschlossen.
Grundrisse












